Salzstraße 36 in 09113 Chemnitz
Beschreibung
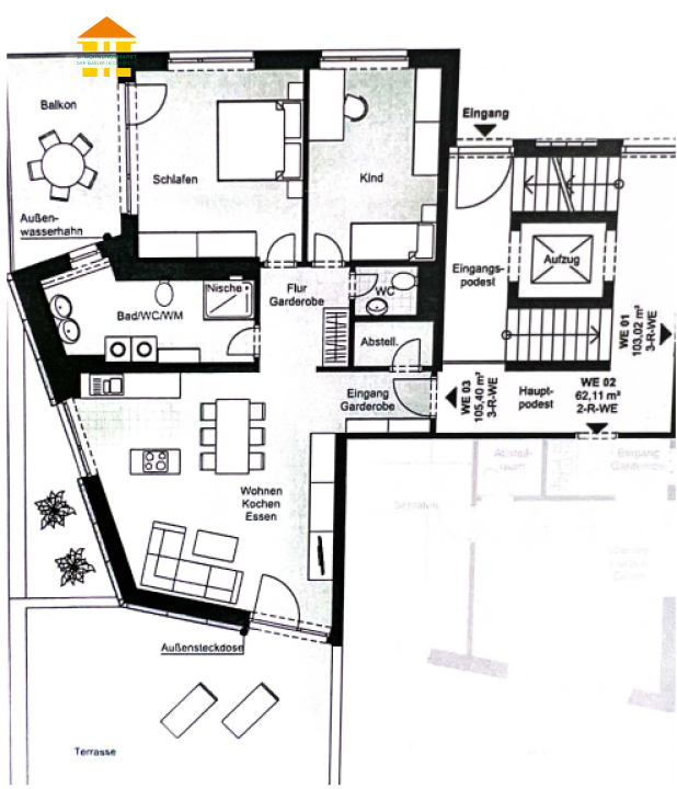
Salzstraße 36 - WE 03 - 3-Raum-Wohnung in 09113 Chemnitz
Zur Neuvermietung steht eine attraktive und moderne 3-Raum-Wohnung im Erdgeschoss eines gepflegten Mehrfamilienhauses - Neubau mit Energiesparpotential.
Folgende Merkmale kennzeichnen die Wohnung:
- praktischer Grundriss - keine Durchgangszimmer /
- lichtdurchfluteter Wohnbereich mit offener Küche /
- moderne Einbauküche bereits vorhanden /
- Schlafzimmer mit Zugang zum Balkon /
- sonnige Terrasse vom Wohnzimmer begehbar /
- schickes Tageslichtbad mit Waschtisch, ebenerdiger Dusche, Wanne /
- Gäste-WC mit modernem Waschtisch /
- Hauswirtschaftsraum mit WM-Stellplatz /
- Alarmanlage /
- praktischer Einbauschrank im Flur /
- elektrische Außenjalousien /
- Fußbodenheizung /
- abgeschlossenes Kellerabteil /
- Tiefgaragenstellplatz zugeordnet /
- gute Infrastruktur /
- ruhige Wohngegend /
- zentrumsnahe Lage /
* Bewässerungssystem und Bambuspflanzen inkl. Pflanzkübel können kostenfrei übernommen werden.
* 24 Monate - Festmietzeit
* Der Energieausweis wird in Kürze nachgereicht
Über den Standort
Objekt-Informationen
Energieausweis
Könnte Sie auch interessieren

Mitarbeiter kontaktieren
-
Salzstraße 36 in 09113 Chemnitz
Pendelzeit berechnen
Wie lange brauche ich zur Arbeit?