Dürerstraße 62 in 09126 Chemnitz
Beschreibung
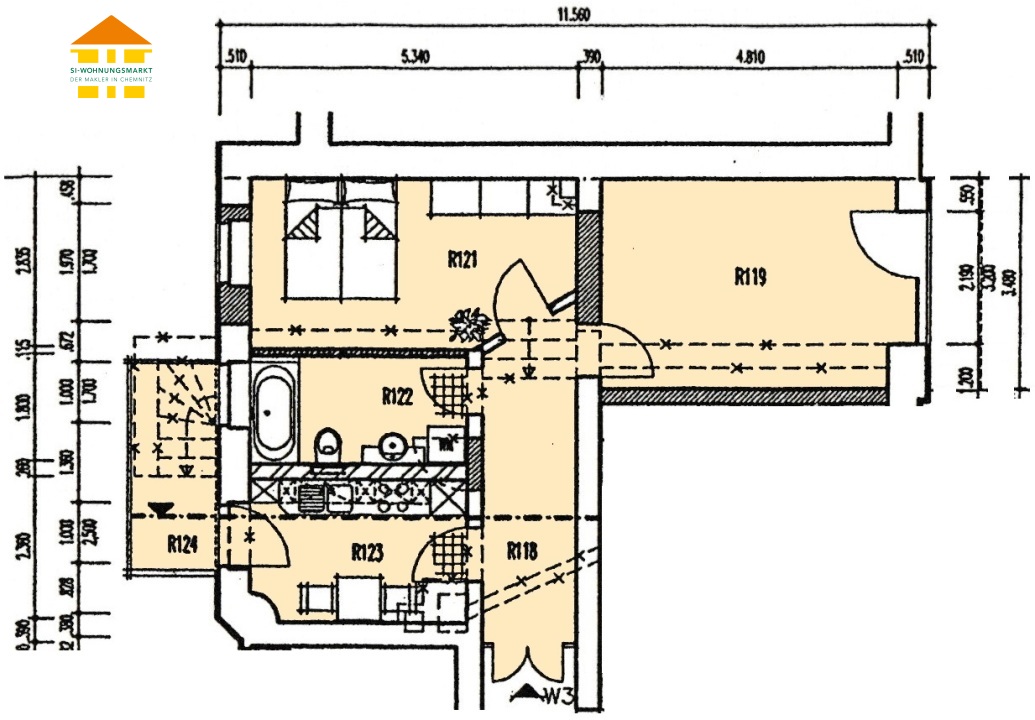
Dürerstraße 62 - WE 03 - 2-Raum-Wohnung in 09126 Chemnitz
Zur Vermietung steht eine Möblierte, gemütliche 2-Raum-Wohnung in ruhiger Lage!
Folgende Merkmale kennzeichnen die Wohnung:
- praktischer Grundriss - keine Durchgangszimmer /
- großzügiges Wohnzimmer /
- Küche mit Einbauküche und WM-Anschluss /
- Balkon mit hofseitiger Ausrichtung /
- Schlafzimmer mit Hofseitiger Ausrichtung /
- Tageslichtbad mit Wanne und Dusche /
- zeitloser Laminatboden /
- abgeschlossenes Kellerabteil /
- Einrichtungen des täglichen Bedarfs in naher Umgebung /
- öffentliche Verkehrsmittel zu Fuß gut erreichbar /
| Objekt-Informationen | |
|---|---|
| Etage | Erdgeschoss (EG) |
| Räume | 2 Raum Wohnung |
| Kaltmiete | 350 Euro (6,31 / qm) |
| Nebenkosten | 140,00 Euro (2,53 / qm) |
| Warmmiete | 490,00 Euro |
| Grösse / qm | 55,50 |
| Kaution | 700,00 Euro |
| Parken | kein Stellplatz ( Euro / Monat) |
| Einbaukueche |
| Energieausweis | |
|---|---|
| Erstellungsdatum | ab 01.05.2014 |
| Ausweistyp | Verbrauchsausweis |
| Energieverbrauch | 94,2 kWh/qm*a |
| Effizienzklasse | --- |
| Energieträger | Gas |
| Baujahr | 1900 |
| In der näheren Umgebung (1km) | |
|---|---|
| Geldautomat | x1 |
| Bank | x1 |
| Bar | x3 |
| Cafe | x4 |
| Autovermietung | x1 |
| Autowäsche | x1 |
| Zahnarzt | x3 |
| öffentliche Parkplätze | x3 |
| Apotheke | x1 |
| Poststation | x1 |
| Restaurant | x16 |
| Schule | x1 |
| Allgemeinmediziner / Ärtzte | x11 |
| Ladestation (E-Car) | x3 |
| Tierarzt | x1 |
Könnte Sie auch interessieren
- 54,52 qm 2 Raum Wohnung 0.51 km
- 56,75 qm 2 Raum Wohnung 0.42 km
- 56,33 qm 2 Raum Wohnung 0.26 km

Mitarbeiter kontaktieren
-
Dürerstraße 62 in 09126 Chemnitz
