Heinrich-Schütz-Straße 90 in 09130 Chemnitz
Beschreibung
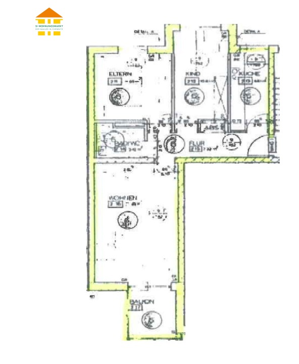
Heinrich-Schütz-Straße 90 - WE 06 - 3-Raum-Wohnung in 09130 Chemnitz
Folgende Merkmale kennzeichnen die Wohnung:
- praktischer Grundriss - keine Durchgangszimmer /
- großzügiges Wohnzimmer mit Zugang zum Balkon /
- Küche mit maßangefertigter Einbauküche /
- Süd-Balkon mit hofseitiger Ausrichtung /
- Schlafzimmer von angenehmer Größe /
- Kinderzimmer auch ideal als Arbeitszimmer nutzbar /
- deckenhoch gefliestes Badezimmer mit Wanne /
- zeitloser Laminatboden /
- Rollläden an den Fenstern /
- Duplex-Stellplatz zugeordnet /
- abgeschlossenes Kellerabteil /
- Aufzug im Treppenhaus /
- Einrichtungen des täglichen Bedarfs in naher Umgebung /
- öffentliche Verkehrsmittel zu Fuß gut erreichbar /
24 Monate Festmietzeit
Über den Standort
Das Wohnhaus befindet sich auf dem Chemnitzer Sonnenberg.
Dieser Stadtteil besticht besonders durch seinen offenen und lebendigen Charakter.
Zahlreiche Imbisse, Einzelhandelsgeschäfte und Startups, haben sich in den vergangenen Jahren auf dem Sonnenberg niedergelassen.
Ein weiterer positiver Aspekt ist die zentrale Lage sowie die sehr gut ausgebaute Infrastruktur des Stadtteils. Einrichtungen des täglichen Bedarfs sind in nur wenigen Gehminuten erreichbar.
Objekt-Informationen
Etage
zweites Obergeschoss (2. OG)
Räume
3 Raum Wohnung
Kaltmiete
435 € (6,8/m²)
Nebenkosten
150,00 € (2,40/m²)
Warmmiete
585,00 €
Wohnfläche
63,96 m²
Kaution
870,00 €
Parken
Tiefgarage (45 €/Monat)
Einbauküche
Fahrstuhl
Mietwohnung
Verfügbar
01.07.2026
63,96 m²
Wohnfläche
3 Raum Wohnung
Zimmer
2. OG.
Etage
Warmmiete
585,00 €
Energieausweis
135,00 kWh/m²a
0
25
50
100
150
200
250
>250
Endenergieverbrauch
135,00 kWh/m²a
Erstellungsdatum
ab 01.05.2014
Ausweistyp
Verbrauchsausweis
Energieträger
Gas
Baujahr
1994
Könnte Sie auch interessieren
Hofer Straße 32 - WE 09 - 2-Raum-Wohnung in 09130 Chemnitz
53,74 m²
2 Raum Wohnung Zi.
400,00 € warm
Beethovenstraße 46 - WE 11 - 2-Raum-Wohnung in 09130 Chemnitz
63,70 m²
2 Raum Wohnung Zi.
498,00 € warm
Hofer Straße 22 - WE 15 - 2-Raum-Wohnung in 09130 Chemnitz
41,28 m²
2 Raum Wohnung Zi.
349,00 € warm

Mitarbeiter kontaktieren
-
Heinrich-Schütz-Straße 90 in 09130 Chemnitz
Pendelzeit berechnen
Wie lange brauche ich zur Arbeit?