Hans-Sachs-Straße 38 in 09126 Chemnitz
Beschreibung
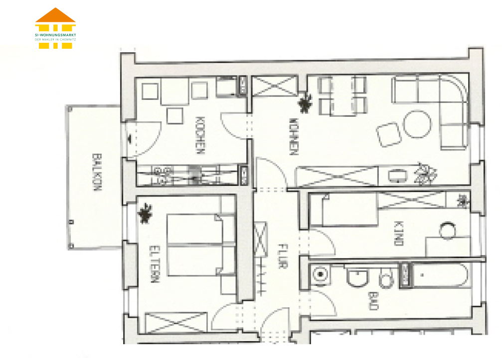
Hans-Sachs-Straße 38 - WE 02 - 3-Raum-Wohnung in 09126 Chemnitz
Zur Miete angeboten wird eine 3-Raum-Wohnung im Lutherviertel.
Folgende Merkmale kennzeichnen die Wohnung:
- praktischer Grundriss - keine Durchgangszimmer /
- sonniges Wohnzimmer /
- Küche mit Zugang zum Balkon /
- maßangefertigte Einbauküche für 25€ mtl.. Aufpreis /
- Balkon mit hofseitiger Ausrichtung /
- Kinderzimmer auch ideal als Arbeitszimmer nutzbar /
- Schlafzimmer von angenehmer Größe /
- Tageslichtbad mit Wanne und WM-Anschluss /
- integrierte Deckenspots in Flur und Bad /
- zeitloser Vinylboden /
- abgeschlossenes Kellerabteil /
- begrünter Innenhof zur gemeinschaftlichen Nutzung /
- Einrichtungen des täglichen Bedarfs in naher Umgebung /
- öffentliche Verkehrsmittel zu Fuß gut erreichbar /
Über den Standort
Objekt-Informationen
Energieausweis
In der näheren Umgebung (1km)
Könnte Sie auch interessieren
- 56,33 qm 2 Raum Wohnung 0.41 km
- 67,16 qm 3 Raum Wohnung 0.38 km
- 87,58 qm 3,5 Raum Wohnung 0.51 km

Mitarbeiter kontaktieren
QR-Code scannen
-
Hans-Sachs-Straße 38 in 09126 Chemnitz
Pendelzeit berechnen
Wie lange brauche ich zur Arbeit?