Tannenstraße 15 in 09113 Chemnitz
Beschreibung
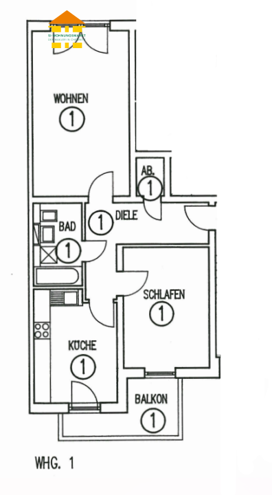
Tannenstraße 15 - WE 01 - 2-Raum-Wohnung in 09113 Chemnitz - Verkauf
Zum Verkauf steht eine attraktive, fest vermietete 2-Raum-Wohnung mit Balkon in einem der beliebtesten Stadtviertel von Chemnitz, im gefragten Stadtteil Schloßchemnitz. Die Wohnung befindet sich im Erdgeschoss eines gepflegten Neubaukomplexes, der im Jahr 1996 errichtet wurde und durch seine sehr gute Energieeffizienz überzeugt. Die Kombination aus moderner Bauweise, solider Vermietung und beliebter Wohnlage macht diese Einheit besonders interessant für Kapitalanleger. Die Wohnung bietet eine funktionale Raumaufteilung, angenehme Wohnqualität und langfristige Vermietbarkeit.
Folgende Merkmale zeichnen die Wohnung besonders aus:
- praktischer & effizient geschnittener Grundriss: gute Vermietbarkeit /
- helle & freundliche Wohnräume: angenehme Wohnatmosphäre/
- Wohnzimmer in komfortabler Größe: für gemütliches Beisammensein /
- separate Küche mit Platz für einen Essbereich: alltagstauglich /
- Balkon vorhanden: Erhöhung des Wohnkomforts /
- direkter Zugang zum Balkon über die Küche /
- gemütliches Schlafzimmer: Blick auf den Balkon, ruhig gelegen /
- innenliegendes Bad mit Wanne & WM-Anschluss : zeitlos ausgestattet /
- interner Abstellraum innerhalb der Wohnung: ideal für Haushaltsgeräte /
- abschließbares Kellerabteil: weiterer Platz für Lagerzwecke /
- gemeinschaftlich genutzter Trockenraum: funktional & gepflegt /
- separater Fahrradraum im Keller: attraktives Zusatzmerkmal für Mieter /
- Personenaufzug im Haus: barrierefreier Zugang zu allen Etagen /
- Tiefgaragenstellplatz Nr. 192: komfortables & sicheres Parken /
Die Wohneinheit ist seit dem 01.03.2018 fest vermietet und erzielt derzeit eine Nettokaltmiete von 4.248,00€ p. a., was sie ideal als Kapitalanlage mit laufenden Mieteinnahmen und stabiler Nachfrage macht. Der Tiefgaragenstellplatz ist aktuell leerstehend. Bei einer Neuvermietung kann aus heutiger Sicht eine realistische Soll-Miete von 720,00€ nettokalt pro Jahr erzielt werden. Der Tiefgaragenstellplatz ist nicht im ausgeschriebenen Kaufpreis enthalten.
Für die Tiefgarage ist eine umfassende Sanierung vorgesehen. In diesem Zusammenhang ist mit der Erhebung einer Sonderumlage zu rechnen.
Über den Standort
Objekt-Informationen
Energieausweis
Könnte Sie auch interessieren
0.48 km
0.02 km
0.41 km

Mitarbeiter kontaktieren
-
Tannenstraße 15 in 09113 Chemnitz
Pendelzeit berechnen
Wie lange brauche ich zur Arbeit?