Ludwigstraße 26 in 09113 Chemnitz
Beschreibung
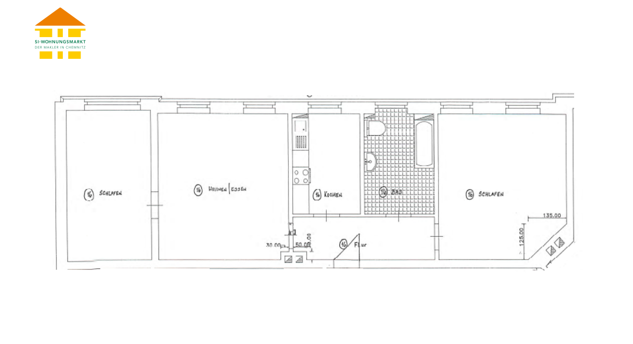
Ludwigstraße 26 - WE 16 - 3-Raum-Wohnung in 09113 Chemnitz - Verkauf
Zum Kauf angeboten wird eine vermietete 3-Raum-Wohnung in Schloßchemnitz! Das gepflegte Mehrfamilienhaus, welches unter Denkmalschutz steht, wurde im Jahr 1920 erbaut und 1992 umfangreich saniert.
Die Wohnung kennzeichnet sich durch folgende Merkmale:
- ansprechend gestalteter Grundriss /
- helle und freundliche Wohnräume /
- geräumiges Wohnzimmer mit Essbereich /
- sonnige Küche mit moderner Einbauküche /
- Schlaf- und Kinderzimmer mit idealem Schnitt /
- großes Badezimmer mit Fenster und Wanne /
- Flur mit viel Platz für eine Garderobe /
- abgeschlossenes Kellerabteil /
- Einrichtungen des täglichen Bedarfs in naher Umgebung /
- öffentliche Verkehrsmittel zu Fuß gut erreichbar /
Die Wohnung ist seit dem 01.09.2025 für 5.160,00€ nettokalt p.a. vermietet. Somit eignet sich die Einheit besonders gut für Kapitalanleger!
Über den Standort
Objekt-Informationen
Energieausweis
In der näheren Umgebung (1km)
Könnte Sie auch interessieren
0.45 km

Mitarbeiter kontaktieren
-
Ludwigstraße 26 in 09113 Chemnitz
Pendelzeit berechnen
Wie lange brauche ich zur Arbeit?