Hainstraße 105 in 09130 Chemnitz
Beschreibung
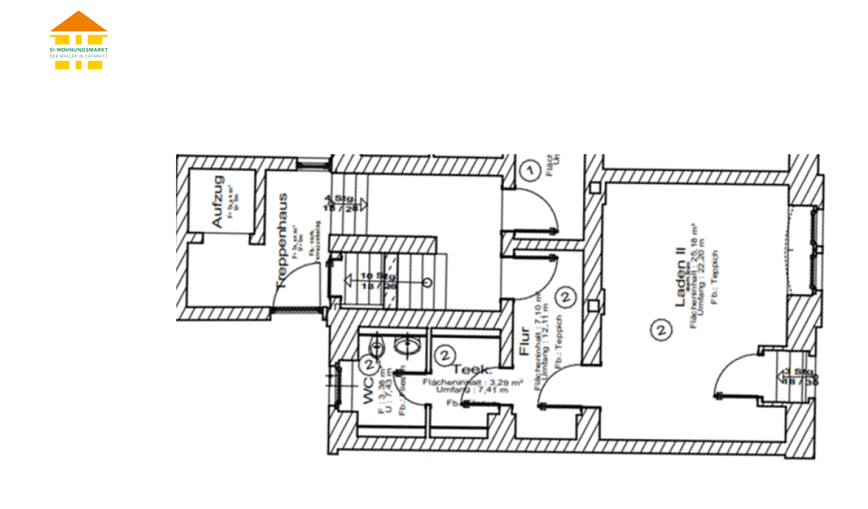
Hainstraße 105 - GE EG links in 09130 Chemnitz
Die frisch renovierte Gewerbeeinheit befindet sich im Erdgeschoss eines 1868 erbauten und 1995 sanierten Gewerbe- und Wohnhauses auf dem Sonnenberg.
Folgende Merkmale kennzeichnen die Einheit:
- ansprechend gestalteter Grundriss /
- eine große Ladenfläche /
- WC mit Fenster /
- zwei Eingangstüren /
- LED Rasterleuchten im Ladenraum /
- Glasfaser vorhanden /
- Aufzug vorhanden /
- Außenstellplatz im Innenhof /
Der Vermieter ist berechtigt, die Verwaltungskosten auf den Mieter umzulegen.
| Objekt-Informationen | |
|---|---|
| Etage | Erdgeschoss (EG) |
| Räume | 1 Raum Wohnung |
| Kaltmiete | 180 Euro (4,50 / qm) |
| Nebenkosten | 100,00 Euro (2,50 / qm) |
| Warmmiete | 280,00 Euro |
| Grösse / qm | 40,00 |
| Kaution | 540,00 Euro |
| Parken | Aussenstellplatz (20 Euro / Monat) |
| Fahrstuhl |
| Energieausweis | |
|---|---|
| Erstellungsdatum | ab 01.05.2014 |
| Ausweistyp | Verbrauchsausweis |
| Energieverbrauch | kWh/qm*a |
| Effizienzklasse | E (<= 200 kWh/m².a) |
| Energieträger | Gas |
| Baujahr | 1868 |
| In der näheren Umgebung (1km) | |
|---|---|
| Geldautomat | x10 |
| Bank | x5 |
| Bar | x7 |
| Cafe | x10 |
| Autovermietung | x1 |
| Autowäsche | x1 |
| Zahnarzt | x4 |
| Bibliothek | x1 |
| öffentliche Parkplätze | x1 |
| Apotheke | x6 |
| Poststation | x2 |
| Restaurant | x27 |
| Allgemeinmediziner / Ärtzte | x15 |
| Ladestation (E-Car) | x10 |
Könnte Sie auch interessieren
- 58,00 qm 2 Raum Wohnung 0.39 km
- 52,40 qm 2 Raum Wohnung 0.29 km
- 41,85 qm 1 Raum Wohnung 0.25 km

Mitarbeiter kontaktieren
-
Hainstraße 105 in 09130 Chemnitz
