Altendorfer Straße 28 in 09113 Chemnitz
Beschreibung
Altendorfer Straße 28 - GE 123 - Gewerbe in 09113 Chemnitz - Verkauf
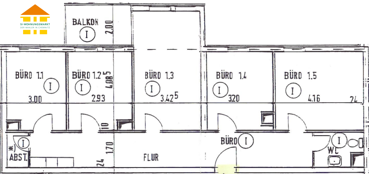
Zum Verkauf steht eine äußerst gepflegte und vielseitig nutzbare Gewerbeeinheit im ersten Obergeschoss eines modernen Wohn- und Gewerbekomplexes aus dem Jahr 1995 in gefragter Lage von Chemnitz-Schloßchemnitz, Altendorfer Straße 28. Die Immobilie überzeugt durch ihre durchdachte Architektur, eine ruhige und zugleich gut erreichbare Lage sowie eine Ausstattung, die sich für unterschiedlichste gewerbliche Nutzungen eignet. Das Gebäude verfügt über einen Personenaufzug, der einen barrierefreien Zugang zu allen Etagen ermöglicht und sowohl für Mitarbeiter als auch für Kunden einen deutlichen Komfort- und Qualitätsvorteil darstellt. Die Gewerbeeinheit empfängt Besucher mit einem großzügigen, flexibel nutzbaren Empfangsbereich, der sich ideal als repräsentativer Eingangs- oder Wartebereich eignet. Ein angeschlossener, geräumiger Flur bietet zusätzlichen Stauraum und unterstützt eine effiziente Organisation des Arbeitsalltags. Das große Bürozimmer bietet ausreichend Platz für mehrere Arbeitsplätze und eine angenehme Arbeitsatmosphäre. Ein besonderes Highlight ist der Balkon mit Blick in den begrünten Innenhof, der sowohl vom Empfangsbereich als auch vom Büro aus zugänglich ist und die Aufenthaltsqualität spürbar erhöht. Ergänzt wird das Raumangebot durch ein weiteres, kleineres Bürozimmer, das sich ideal als Einzel- oder Besprechungsbüro nutzen lässt, sowie einen zusätzlichen Raum, der derzeit als Hauswirtschafts- bzw. Abstellraum dient. Die großzügige Teeküche bietet ausreichend Platz für alle Mitarbeiter und fördert ein angenehmes Betriebsklima. Das modern ausgestattete, innenliegende Badezimmer mit Dusche erfüllt hohe Anforderungen an Komfort und Funktionalität. Weitere Abstellmöglichkeiten stehen in Form eines abschließbaren Kellerabteils zur Verfügung. Zusätzlich können ein gemeinschaftlicher Wasch- und Trockenraum sowie ein Fahrradraum im Keller genutzt werden. Zwei Sondernutzungsrechte an Außenstellplätzen gehören zur Einheit. Diese sind nicht im Kaufpreis enthalten, bieten jedoch zusätzlichen Komfort Ausreichend Parkmöglichkeiten für Kunden befinden sich in unmittelbarer Umgebung. Die Gewerbeeinheit ist seit dem 15.04.2023 zuverlässig vermietet und wird von einer Hausmeisterfirma genutzt, die zugleich das Gesamtobjekt betreut. Die jährliche Nettokaltmiete beträgt 3.852,00 €, wodurch sich diese Immobilie als solide und langfristig attraktive Kapitalanlage mit planbaren Mieteinnahmen präsentiert.
Über den Standort
Objekt-Informationen
Energieausweis
In der näheren Umgebung (1km)

Mitarbeiter kontaktieren
QR-Code scannen
-
Altendorfer Straße 28 in 09113 Chemnitz
Pendelzeit berechnen
Wie lange brauche ich zur Arbeit?