Walter-Oertel-Straße 38 in 09112 Chemnitz
Beschreibung
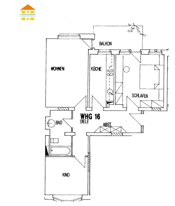
Walter-Oertel-Straße 38 - WE 16 - 3-Raum Wohnung 09112 Chemnitz
Zur Miete angeboten wird eine 2-Raum-Wohnung in Chemnitz.
Diese Merkmale Kennzeichnen die Wohnung
- praktischer Grundriss - keine Durchgangszimmer /
- Wohnzimmer von angenehmer Größe/
- Balkon mit hofseitiger Ausrichtung /
- Schlafzimmer mit Hofseitiger Ausrichtung /
- Kinder-/Arbeitszimmer von angenehmer Größe /
- Tageslichtbad mit Wanne und WM-Anschluss /
- zeitloser Laminatboden /
- interner Abstellraum /
- abgeschlossenes Kellerabteil /
- begrünter Innenhof zur gemeinschaftlichen Nutzung /
- Einrichtungen des täglichen Bedarfs in naher Umgebung /
- öffentliche Verkehrsmittel zu Fuß gut erreichbar /
Über den Standort
Objekt-Informationen
Energieausweis

Mitarbeiter kontaktieren
QR-Code scannen
-
Walter-Oertel-Straße 38 in 09112 Chemnitz
Pendelzeit berechnen
Wie lange brauche ich zur Arbeit?