Casparistraße 3 in 09126 Chemnitz
Beschreibung
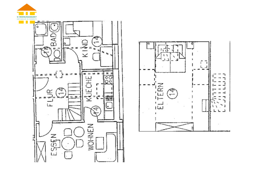
Casparistraße 3 - WE 14 - 2-Raum-Wohnung in 09126 Chemnitz
Zur Miete angeboten wird eine 3-Raum-Wohnung im Lutherviertel.
Folgende Merkmale kennzeichnen die Wohnung:
- praktischer Grundriss /
- großzügiges Wohnzimmer /
- Küche vom Wohnzimmer zugänglich /
- Kinderzimmer auch ideal als Arbeitszimmer nutzbar /
- Schlafzimmer von angenehmer Größe /
- Badezimmer mit Dusche und WM-Anschluss /
- zeitloser Laminatboden /
- zusätzlicher Abstellraum im Treppenhaus /
- abgeschlossenes Kellerabteil /
- Einrichtungen des täglichen Bedarfs in naher Umgebung /
- öffentliche Verkehrsmittel zu Fuß gut erreichbar /
| Objekt-Informationen | |
|---|---|
| Etage | Dachgeschoss (DG) |
| Räume | 3 Raum Wohnung |
| Kaltmiete | 345 Euro (5,34 / qm) |
| Nebenkosten | 155,00 Euro (2,40 / qm) |
| Warmmiete | 500,00 Euro |
| Grösse / qm | 64,65 |
| Kaution | 690,00 Euro |
| Energieausweis | |
|---|---|
| Erstellungsdatum | ab 01.05.2014 |
| Ausweistyp | Verbrauchsausweis |
| Energieverbrauch | 96,9 kWh/qm*a |
| Effizienzklasse | C (<= 100 kWh/m².a) |
| Energieträger | Gas |
| Baujahr | 1910 |
| In der näheren Umgebung (1km) | |
|---|---|
| Geldautomat | x2 |
| Bank | x1 |
| Bar | x4 |
| Cafe | x4 |
| Autovermietung | x2 |
| Autowäsche | x1 |
| Zahnarzt | x3 |
| öffentliche Parkplätze | x3 |
| Apotheke | x2 |
| Poststation | x1 |
| Restaurant | x17 |
| Allgemeinmediziner / Ärtzte | x8 |
| Ladestation (E-Car) | x6 |
Könnte Sie auch interessieren
- 62,77 qm 3 Raum Wohnung 0.27 km
- 49,40 qm 2 Raum Wohnung 0.34 km
- 50,30 qm 2 Raum Wohnung 0.36 km

Mitarbeiter kontaktieren
-
Casparistraße 3 in 09126 Chemnitz
