Ebersdorfer Straße 31 in 09131 Chemnitz
Beschreibung
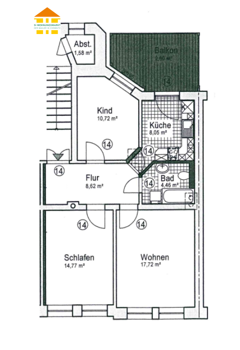
Ebersdorfer Straße 31 - WE 14 - 3-Raum-Wohnung in 09131 Chemnitz - Verkauf
Zum Kauf angeboten wird eine vermietete 3-Raum-Wohnung mit Balkon im 1. Obergeschoss in Chemnitz - Hilbersdorf! Das denkmalgeschützte Mehrfamilienhaus wurde im Jahr 1900 erbaut und 2007 umfangreich saniert.
Die Wohnung kennzeichnet sich durch folgende Merkmale:
- ansprechend gestalteter Grundriss /
- geräumiges Wohnzimmer /
- Schlafzimmer mit zwei großen Fenstern /
- gemütliches Kinderzimmer /
- Kinderzimmer und Küche mit Blick ins Grüne /
- Küche mit Zugang zum Balkon /
- großer Balkon mit hofseitiger Ausrichtung /
- Badezimmer mit Wanne und WM-Anschluss /
- Flur mit ausreichend Platz für eine Garderobe /
- integrierte Decken-Halogenleuchten in Bad und Flur /
- zeitlose Laminatboden in allen Wohnräumen /
- deckenhoch gefliestes Badezimmer /
- abgeschlossenes Kellerabteil /
- Sondernutzungsrecht am zugeordneten Außenstellplatz /
- Einrichtungen des täglichen Bedarfs in naher Umgebung /
- öffentliche Verkehrsmittel zu Fuß gut erreichbar /
Die Wohnung und der Stellplatz sind seit dem 01.03.2016 für 4.860,00€ nettokalt p.a. vermietet.
Der ausgeschriebene Stellplatz ist im Verkaufspreis nicht inkludiert.
| Objekt-Informationen | |
|---|---|
| Etage | erstes Obergeschoss (1. OG) |
| Räume | 3 Raum Wohnung |
| Verkaufpreis: | 72.000,00 € |
| Provision: | 3,57% inkl. MwSt. jedoch mindestens 3.570,00€ inkl. MwSt. Euro |
| Grösse / qm | 67,14 |
| Parken | Aussenstellplatz (3000 Euro) |
| Energieausweis | |
|---|---|
| Erstellungsdatum | nicht benötigt |
| Ausweistyp | --- |
| Energieverbrauch | 93 kWh/qm*a |
| Effizienzklasse | --- |
| Energieträger | keine Angabe |
| Baujahr | 1900 |
| In der näheren Umgebung (1km) | |
|---|---|
| Apotheke | x1 |
| Restaurant | x3 |
| Allgemeinmediziner / Ärtzte | x3 |
| Ladestation (E-Car) | x1 |
Könnte Sie auch interessieren
- 67,85 qm 3 Raum Wohnung 0.49 km
- 47,00 qm 2 Raum Wohnung 0.12 km
- 57,86 qm 3 Raum Wohnung 0.01 km

Mitarbeiter kontaktieren
-
Ebersdorfer Straße 31 in 09131 Chemnitz
