Clausstraße 105 in 09126 Chemnitz
Beschreibung
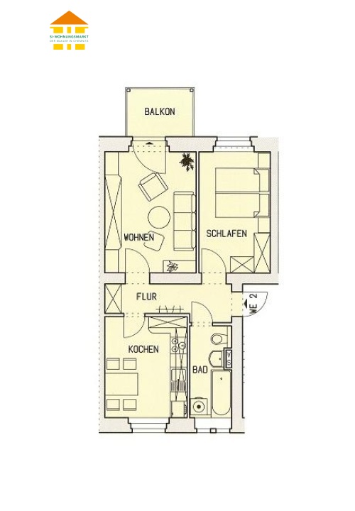
Clausstraße 105 - WE 02 - 2-Raum-Wohnung in 09126 Chemnitz
Zur Miete angeboten wird eine 2-Raum-Wohnung in Gablenz.
Folgende Merkmale kennzeichnen die Wohnung:
- praktischer Grundriss - keine Durchgangszimmer /
- Wohnzimmer mit Zugang zum Balkon /
- Küche mit genügend Platz für einen Essbereich /
- Balkon mit hofseitiger Ausrichtung /
- Schlafzimmer mit Hofseitiger Ausrichtung /
- Tageslichtbad mit Wanne und WM-Anschluss /
- integrierte Deckenspots in Flur und Bad /
- zeitloser Laminatboden /
- Stellplatz zugeordnet /
- abgeschlossenes Kellerabteil /
- begrünter Innenhof zur gemeinschaftlichen Nutzung /
- Einrichtungen des täglichen Bedarfs in naher Umgebung /
- öffentliche Verkehrsmittel zu Fuß gut erreichbar /
| Objekt-Informationen | |
|---|---|
| Etage | Erdgeschoss (EG) |
| Räume | 2 Raum Wohnung |
| Kaltmiete | 309 Euro (6,20 / qm) |
| Nebenkosten | 120,00 Euro (2,40 / qm) |
| Warmmiete | 429,00 Euro |
| Grösse / qm | 49,90 |
| Kaution | 618,00 Euro |
| Parken | Aussenstellplatz (30 Euro / Monat) |
| Energieausweis | |
|---|---|
| Erstellungsdatum | nicht benötigt |
| Ausweistyp | --- |
| Energieverbrauch | kWh/qm*a |
| Effizienzklasse | --- |
| Energieträger | keine Angabe |
| Baujahr | 1928 |
| In der näheren Umgebung (1km) | |
|---|---|
| Bank | x1 |
| Bar | x2 |
| Cafe | x2 |
| Autovermietung | x2 |
| Zahnarzt | x3 |
| öffentliche Parkplätze | x4 |
| Apotheke | x2 |
| Poststation | x1 |
| Restaurant | x14 |
| Allgemeinmediziner / Ärtzte | x11 |
| Ladestation (E-Car) | x5 |
Könnte Sie auch interessieren
- 57,40 qm 2 Raum Wohnung 0.41 km
- 58,83 qm 3 Raum Wohnung 0.49 km
- 66,92 qm 2 Raum Wohnung 0.24 km

Mitarbeiter kontaktieren
-
Clausstraße 105 in 09126 Chemnitz
