Erich-Mühsam-Straße 1 in 09112 Chemnitz
Beschreibung
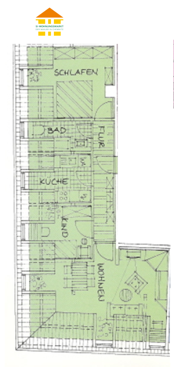
Erich-Mühsam-Straße 1 - WE 17 - 3-Raum-Wohnung in 09119 Chemnitz
Zur Miete angeboten wird eine 3-Raum-Wohnung auf dem Kaßberg.
Folgende Merkmale kennzeichnen die Wohnung:
- praktischer Grundriss - keine Durchgangszimmer /
- geräumiges Wohnzimmer /
- sonnige Küche /
- Kinderzimmer auch ideal als Arbeitszimmer nutzbar /
- Schlafzimmer von angenehmer Größe /
- Tageslichtbad mit Wanne und WM-Anschluss /
- integrierte Deckenspots in Flur und Bad /
- zeitloser Laminatboden /
- abgeschlossenes Kellerabteil /
- begrünter Innenhof zur gemeinschaftlichen Nutzung /
- Einrichtungen des täglichen Bedarfs in naher Umgebung /
- öffentliche Verkehrsmittel zu Fuß gut erreichbar /
| Objekt-Informationen | |
|---|---|
| Etage | Dachgeschoss (DG) |
| Räume | 3 Raum Wohnung |
| Kaltmiete | 339 Euro (5,55 / qm) |
| Nebenkosten | 146,00 Euro (2,40 / qm) |
| Warmmiete | 485,00 Euro |
| Grösse / qm | 61,02 |
| Kaution | 678,00 Euro |
| Energieausweis | |
|---|---|
| Erstellungsdatum | nicht benötigt |
| Ausweistyp | Verbrauchsausweis |
| Energieverbrauch | kWh/qm*a |
| Effizienzklasse | --- |
| Energieträger | keine Angabe |
| Baujahr | 1930 |
| In der näheren Umgebung (1km) | |
|---|---|
| Geldautomat | x3 |
| Bank | x2 |
| Bar | x3 |
| Cafe | x6 |
| Zahnarzt | x4 |
| Bibliothek | x1 |
| öffentliche Parkplätze | x1 |
| Apotheke | x5 |
| Poststation | x1 |
| Restaurant | x16 |
| Schule | x1 |
| Allgemeinmediziner / Ärtzte | x13 |
| Ladestation (E-Car) | x11 |
Könnte Sie auch interessieren
- 72,81 qm 3 Raum Wohnung 0.14 km
- 89,60 qm 3 Raum Wohnung 0.45 km
- 55,39 qm 3 Raum Wohnung 0.28 km

Mitarbeiter kontaktieren
-
Erich-Mühsam-Straße 1 in 09112 Chemnitz
