Heimgarten 108 in 09127 Chemnitz
Beschreibung
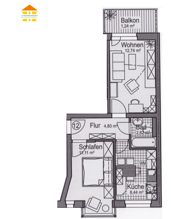
Heimgarten 108 - WE 12 - 2-Raum-Wohnung in 09127 Chemnitz
Zur Miete angeboten wird eine 2-Raum-Wohnung in Gablenz.
Folgende Merkmale kennzeichnen die Wohnung:
- praktischer Grundriss - keine Durchgangszimmer /
- zeitloser Laminatboden in allen Wohnräumen /
- helles und freundliches Wohnzimmer /
- Zugang zum Balkon über das Wohnzimmer /
- Küche mit genügend Platz für einen Essbereich /
- Bad mit Wanne /
- gemütliches Schlafzimmer mit Blick in den Innenhof /
- integrierte Deckenspots in Flur und Bad /
- abgeschlossenes Kellerabteil /
- begrünter Innenhof zur gemeinschaftlichen Nutzung /
- Einrichtungen des täglichen Bedarfs in naher Umgebung /
- öffentliche Verkehrsmittel zu Fuß gut erreichbar /
- allgemeiner Trockenboden /
| Objekt-Informationen | |
|---|---|
| Etage | Erdgeschoss (EG) |
| Räume | 2 Raum Wohnung |
| Kaltmiete | 298 Euro (7,28 / qm) |
| Nebenkosten | 106,00 Euro (2,60 / qm) |
| Warmmiete | 404,00 Euro |
| Grösse / qm | 40,95 |
| Kaution | 894,00 Euro |
| Energieausweis | |
|---|---|
| Erstellungsdatum | nicht benötigt |
| Ausweistyp | --- |
| Energieverbrauch | 72,50 kWh/qm*a |
| Effizienzklasse | --- |
| Energieträger | keine Angabe |
| Baujahr | 1927 |
| In der näheren Umgebung (1km) | |
|---|---|
| Geldautomat | x1 |
| Bank | x2 |
| Bar | x1 |
| Cafe | x1 |
| Autowäsche | x1 |
| Zahnarzt | x3 |
| öffentliche Parkplätze | x4 |
| Apotheke | x1 |
| Poststation | x1 |
| Restaurant | x13 |
| Allgemeinmediziner / Ärtzte | x15 |
| Ladestation (E-Car) | x8 |
Könnte Sie auch interessieren
- 51,20 qm 2 Raum Wohnung 0.29 km
- 52,63 qm 2 Raum Wohnung 0.18 km
- 57,33 qm 3 Raum Wohnung 0.1 km

Mitarbeiter kontaktieren
-
Heimgarten 108 in 09127 Chemnitz
