Franz-Mehring-Straße 13 in 09112 Chemnitz
Beschreibung
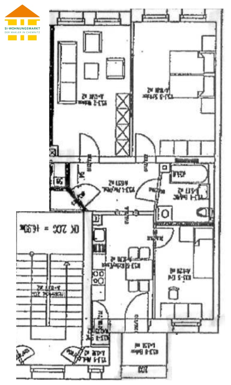
Franz-Mehring-Straße 13 - WE 08 - 3-Raum-Wohnung in 09112 Chemnitz
Zur Miete angeboten wird eine ideal geschnittene 3-Raum-Wohnungauf dem Kaßberg.
Die Wohnung kennzeichnet sich durch folgende Merkmale:
- praktischer Grundriss /
- Balkon mit hofseitiger Ausrichtung /
- großzügiges Wohnzimmer /
- maßangefertigte Einbauküche inkl. allen Geräten für 45,- €/Monat /
- Kinderzimmer auch ideal als Arbeitszimmer nutzbar /
- Schlafzimmer von angenehmer Größe /
- Schlafzimmer mit Hofseitiger Ausrichtung /
- Bad mit Wanne und WM-Anschluss /
- zeitloser Laminatboden /
- abgeschlossenes Kellerabteil /
- zusätzlicher Abstellraum auf halber Etage /
- Trockenboden zur gemeinschaftlichen Nutzung /
- Glasfaseranschluss /
- begrünter Innenhof zur gemeinschaftlichen Nutzung /
- Einrichtungen des täglichen Bedarfs in naher Umgebung /
- öffentliche Verkehrsmittel zu Fuß gut erreichbar /
*24 Monate Mindestmietdauer*
Über den Standort
Objekt-Informationen
Energieausweis
In der näheren Umgebung (1km)

Mitarbeiter kontaktieren
QR-Code scannen
-
Franz-Mehring-Straße 13 in 09112 Chemnitz
Pendelzeit berechnen
Wie lange brauche ich zur Arbeit?