Agnesstraße 7 in 09113 Chemnitz
Beschreibung
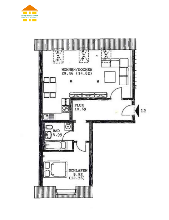
Agnesstraße 7 - WE 12 - 2-Raum-Wohnung in 09113 Chemnitz - Verkauf
Zum Kauf angeboten wird eine vermietete 2-Raum-Wohnung im Dachgeschoss in Schloßchemnitz! Das denkmalgeschützte Mehrfamilienhaus wurde im Jahr 1900 erbaut und 1996 umfangreich saniert.
Die Wohnung kennzeichnet sich durch folgende Merkmale:
- ansprechend gestalteter Grundriss /
- großzügiger Wohnbereich mit halboffener Küche /
- sonnige Küche mit Einbauküche und WM-Anschluss /
- gemütliches Schlafzimmer /
- Badezimmer mit Wanne und WM-Anschluss /
- geräumiger Flur mit ausreichend Platz für eine Garderobe /
- zeitloser Laminatboden in allen Wohnräumen /
- abgeschlossenes Kellerabteil /
- SNR am zugeordneten Außenstellplatz /
- Einrichtungen des täglichen Bedarfs in naher Umgebung /
- öffentliche Verkehrsmittel zu Fuß gut erreichbar /
Die Wohnung und der Stellplatz sind seit dem 01.03.2021 für 2.928,00€ nettokalt p.a. vermietet. Den Mietern wurde eine einvernehmliche Mieterhöhung zugestellt, welche die Nettokaltmiete ab März 2026 auf 3.468,00€ p.a. anhebt.
Über den Standort
Objekt-Informationen
Energieausweis
In der näheren Umgebung (1km)

Mitarbeiter kontaktieren
-
Agnesstraße 7 in 09113 Chemnitz
Pendelzeit berechnen
Wie lange brauche ich zur Arbeit?