Limbacher Straße 117 in 09116 Chemnitz
Beschreibung
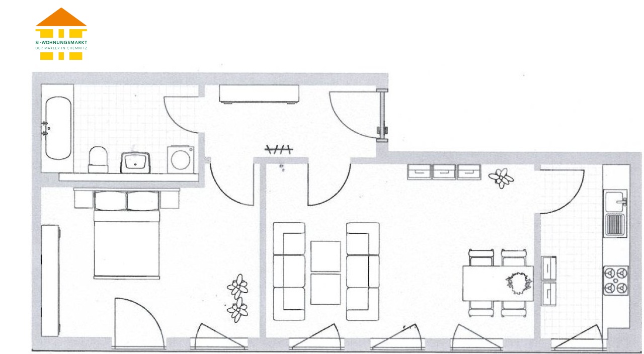
Limbacher Straße 117 - WE 06 - 2-Raum-Wohnung in 09116 Chemnitz
Zur Miete angeboten wird eine 2-Raum-Wohnung in Altendorf.
Folgende Merkmale kennzeichnen die Wohnung:
- praktischer Grundriss /
- großzügiges Wohnzimmer /
- Küche mit Einbauküche (ohne Kühlschrank) 25,-€/Monat /
- Schlafzimmer von angenehmer Größe /
- Tageslichtbad mit Wanne und WM-Anschluss /
- zeitloser Laminatboden /
- Stellplatz zugeordnet /
- abgeschlossenes Kellerabteil /
- begrünter Innenhof zur gemeinschaftlichen Nutzung /
- Einrichtungen des täglichen Bedarfs in naher Umgebung /
- öffentliche Verkehrsmittel zu Fuß gut erreichbar /
Über den Standort
Die Lage befindet sich im Chemnitzer Stadtteil Altendorf, einem lebendigen Wohngebiet westlich des Stadtzentrums. Der Stadtteil verbindet urbanes Flair mit ruhigen Wohnbereichen und zeichnet sich durch eine gute Mischung aus sanierten Altbauten, kleineren Mehrfamilienhäusern und grünen Innenhöfen aus. Altendorf bietet eine attraktive Infrastruktur mit Einkaufsmöglichkeiten, Gastronomie, ärztlicher Versorgung sowie kurzen Wegen zu Schulen und Kindertagesstätten.
Durch die verkehrsgünstige Lage besteht eine schnelle Anbindung in die Innenstadt sowie zu den umliegenden Stadtteilen und zur A72, was den Standort sowohl für Berufspendler als auch für Familien interessant macht. Insgesamt bietet Altendorf ein ausgewogenes, urban geprägtes Wohnumfeld mit guter Erreichbarkeit und angenehmer Nachbarschaft
Objekt-Informationen
Etage
zweites Obergeschoss (2. OG)
Räume
2 Raum Wohnung
Kaltmiete
225 € (4,47/m²)
Nebenkosten
125,00 € (2,48/m²)
Warmmiete
350,00 €
Wohnfläche
50,42 m²
Kaution
675,00 €
Parken
Tiefgarage (45 €/Monat)
Einbauküche
Mietwohnung
Verfügbar
sofort
50,42 m²
Wohnfläche
2 Raum Wohnung
Zimmer
2. OG.
Etage
Warmmiete
350,00 €
Energieausweis
Erstellungsdatum
nicht benötigt
Ausweistyp
---
Energieträger
keine Angabe
Baujahr

Mitarbeiter kontaktieren
-
Limbacher Straße 117 in 09116 Chemnitz
Pendelzeit berechnen
Wie lange brauche ich zur Arbeit?