Schulstraße 97 in 09125 Chemnitz
Beschreibung
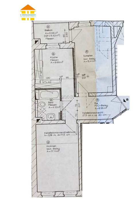
Schulstraße 97 - WE 08 - 2-Raum-Wohnung in 09125 Chemnitz
Zur Miete angeboten wird eine 2-Raum-Wohnung in Chemnitz.
Diese Merkmale Kennzeichnen die Wohnung
- praktischer Grundriss - keine Durchgangszimmer /
- großzügiges Wohnzimmer /
- Balkon mit hofseitiger Ausrichtung /
- Schlafzimmer mit Hofseitiger Ausrichtung /
- Badezimmer mit Wanne /
- abgeschlossenes Kellerabteil /
- begrünter Innenhof zur gemeinschaftlichen Nutzung /
- Einrichtungen des täglichen Bedarfs in naher Umgebung /
- öffentliche Verkehrsmittel zu Fuß gut erreichbar /
Über den Standort
Das Objekt liegt im langgestreckten Stadtteil Altchemnitz, der durch eine vielfältige Architektur geprägt ist. Das Wohnangebot reicht von sanierten Altbauwohnungen in Zentrumsnähe bis hin zu Doppelhaushälften mit ländlichem Charakter im Süden. Zudem haben sich aufgrund der sehr guten Verkehrsanbindung zahlreiche Industriebetriebe in Altchemnitz angesiedelt.
Objekt-Informationen
Etage
zweites Obergeschoss (2. OG)
Räume
2 Raum Wohnung
Kaltmiete
235 € (5,00/m²)
Nebenkosten
110,00 € (2,34/m²)
Warmmiete
345,00 €
Wohnfläche
47,08 m²
Kaution
705,00 €
Mietwohnung
Verfügbar
sofort
47,08 m²
Wohnfläche
2 Raum Wohnung
Zimmer
2. OG.
Etage
Warmmiete
345,00 €
Energieausweis
kWh/m²a
0
25
50
100
150
200
250
>250
Erstellungsdatum
ab 01.05.2014
Ausweistyp
Verbrauchsausweis
Energieträger
Gas
Baujahr
1900

Mitarbeiter kontaktieren
-
Schulstraße 97 in 09125 Chemnitz
Pendelzeit berechnen
Wie lange brauche ich zur Arbeit?