Am Pahlbach 9 in 09661 Hainichen OT Cunnersdorf
Beschreibung
Am Pahlbach 9 - EFH - in 09661 Hainichen OT Cunnersdorf - Verkauf
In Hainichen OT Cunnersdorf steht diese ca. 1958 erbaute, charmante und liebevoll modernisierte Doppelhaushälfte auf einem großzügigen Grundstück von rund 660 m² zum Verkauf. Das Haus präsentiert sich in einem äußerst gepflegten Zustand und wurde 2025 umfassend renoviert. Dabei wurden sowohl die Elektrik als auch sämtliche Fußböden und Decken erneuert, ebenso das Badezimmer sowie das Gäste-WC. Zusätzlich wurde eine neue Gastherme mit Flüssiggas installiert, und in Küche sowie Schlafzimmer sorgt eine dezentrale Lüftungsanlage mit Wärmerückgewinnung für ein angenehmes Raumklima. Das Dach wurde zudem bereits im Jahr 2014 erneuert.
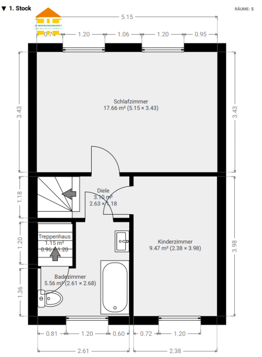
Beim Betreten des Hauses gelangt man zunächst in einen praktischen Windfang, der in den Eingangsbereich führt. Die schöne Holztreppe verleiht dem Erdgeschoss eine warme Atmosphäre und verbindet dieses harmonisch mit dem Obergeschoss. Ein Tageslicht-Gäste-WC bietet zusätzlichen Komfort. Das große Wohnzimmer öffnet sich mit einem herrlichen Blick in den gepflegten Garten und schafft einen einladenden Mittelpunkt des Hauses. Die halboffene Wohnküche, erreichbar über das Wohnzimmer, bietet viel Platz für gemeinsame Koch- und Wohlfühlmomente; zusätzlich ist hier ein Waschmaschinenanschluss vorhanden. Ein Kaminanschluss im Wohnzimmer ist möglich und bietet die Option für wohlige Wärme in der kalten Jahreszeit. Im 1. Obergeschoss erwarten Sie ein großes Schlafzimmer mit vielfältigen Gestaltungsmöglichkeiten sowie ein weiteres Zimmer, das sich ideal als Kinder-, Arbeits- oder Gästezimmer eignet. Das modern geflieste Tageslichtbad mit Badewanne rundet diese Etage komfortabel ab. Insgesamt stehen im Erd- und Obergeschoss rund 74 m² Wohnfläche zur Verfügung. Der Dachboden bietet mit über 41 m² wertvolle zusätzliche Nutzfläche und eignet sich perfekt als Stauraum oder Hobbybereich. Auch der Keller mit weiteren rund 35 m² Nutzfläche schafft zusätzlichen Platz für Vorräte, Werkstatt oder Hauswirtschaft.
Zum Haus gehören zudem ein Carport und eine Garage, die praktische Abstellmöglichkeiten für PKW, Fahrräder oder Gartengeräte bieten. Das weitläufige Grundstück lädt zum Entspannen, Spielen oder Gärtnern ein und bietet vielseitige Nutzungsmöglichkeiten für die ganze Familie. Alt- oder Baulasten sind nicht eingetragen. Das Objekt wird derzeit von den Eigentümern bewohnt, jedoch bei Verkauf vollständig geräumt übergeben, sodass einer kurzfristigen eigenen Nutzung nichts im Wege steht.
Diese Doppelhaushälfte vereint modernen Wohnkomfort, solide Substanz und ein idyllisches Wohnumfeld – ein ideales Zuhause für alle, die ein gepflegtes Objekt mit schönem Grundstück in ruhiger Lage suchen.
| Objekt-Informationen | |
|---|---|
| Etage | --------------------------- () |
| Räume | 3 Raum Wohnung |
| Verkaufpreis: | 169.500,00 € |
| Provision: | 3,57% inkl. MwSt. jedoch mind. 5.950,00€ inkl. MwSt. Euro |
| Grösse / qm | 74,21 |
| Parken | Garage ( Euro) |
| Energieausweis | |
|---|---|
| Erstellungsdatum | ab 01.05.2014 |
| Ausweistyp | Bedarfsausweis |
| Energieverbrauch | kWh/qm*a |
| Effizienzklasse | E (<= 200 kWh/m².a) |
| Energieträger | Gas |
| Baujahr |

Mitarbeiter kontaktieren
-
Am Pahlbach 9 in 09661 Hainichen OT Cunnersdorf
